
1. 概述及用途
MNS型低压抽出式开关柜是我厂根据市场需求而开发的新一代低压开关柜。产品技术标准符合IEC439M《低压成套开关设备和控制设备》;GB7251.1-1997《低压成套开关设备》等标准要求。
MNS型低压抽出式开关柜适用于发电厂、变电站、石油化工、冶金轧钢,轻工纺织等厂矿企业和住宅小区,高层建筑等场所,作为交流50~60Hz,额定工作电压660V及以下的电力系统的配电设备的电能转达换、分配及控制之用。
2. 使用条件
2.1 周围空气温度不高于+40℃,不低于-5℃,并且24h内其平均温度不高于+35℃。
2.2 大气条件:空气清洁,相对温度在最高温度为+40℃时不超过50%,在较低温度时允许有较高的相对湿度,例如+20℃时为90%,但应考虑到由于温度变化,有可能会偶然地产生适度的凝露。
2.3 海拔高度不超过2000m。
2.4 本装置适应于以下温度的运输和储存过程:-25℃至55℃的范围之间,在短时间内(不 超过24h)可达+70℃,在这些极限温度下装置不应遭到任何不可恢复的损伤,而且在正常的条件下应能正常工作。
2.5 如果上述使用条件不能满足时,应由用户和制造厂协商解决。
2.6 当本装置使用海上石油和核电站时,应另行签订技术协议。
3. 结构特征
装置的基本柜架为组合装配结构,柜架的全部结构都经过镀锌处理,通过自攻锁紧螺钉或8.8级六角螺钉紧固互相连接成基本柜架,再按方案变化需要,加上相应的门,封板,隔板,安装支架,以及母线,功能单元等零部件,组装成一台完整的装置,装置内零部件尺寸,隔室尺寸实行模数化(模数单位E=25mm,下同)
3.1 动力配电中心(以下简称PC)
3.1.1 PC柜内分成四个隔室:
水平母线隔室:在柜的后部;
功能单元隔室:在柜前上部或柜前左边;
电缆隔室:在柜前下部或柜前右边;
控制回路隔室:在柜前上部;
3.1.2 柜内安装的框架式断路器,均能在关门状态下实现柜外电动操作,视察断路器的分合闸状态和根据操作机构与门的位置关系,判断出断路器在试验位置还是在工作位置。
3.1.3 主电路与辅助电路之间设计成分隔结构,仪表、信号灯和按钮等组成的辅助电路单元,均安装于塑料板上,板后有一用阻燃型聚胺脂发泡塑料做成的罩壳与主电路分离。
3.2 抽出式电动机控制中心和小电流的动力配电中心(以下简称为抽出式MCC)
3.2.1 抽出式MCC柜内分成三个隔室,即柜后部的水平母线隔室,柜前部左边的功能单元隔室,柜前部右边的电缆隔室。水平母线室与功能单元隔室之间用阻燃型发泡塑料制成的功能壁分隔,电缆隔室与水平母线隔室,功能单元隔室之间用钢板分隔。
3.2.2抽出式MCC有单面操作和双面操作二种结构。
3.2.3抽出式MCC有五种标准尺寸的抽屉,它们分别是8E/4,8E/2,8E,16E和24E,其中8E/4和8E/2二种抽屉的结构是用模制的阻燃型塑料件的铝合金型材组成。(4个8E/4抽屉2个8E/2抽屉组成一个8E高度的间隔)。功能单元隔室的总高度为72E。
3.2.4 五种标准尺寸的抽屉,一般有16个二次隔离触头引出,如果需要,除8E/4抽屉外,其它四种抽屉可增加到32个。每个静触头的接线端头同时可接三根导线。(二根用TT1-2.5/2.8×0.8型插套式端头接线,另一根用1T2.5-2型插针式端头接线。上述二种端头由制造厂随产品提供适量的附件和冷轧钳)。
3.2.5 通过机械联锁装置的操作程序性,只有当主回路和辅助回路全部断开的状态下才能移动抽屉,机械联锁装置使抽屉具有移动位置,试验位置,分断位置,边接位置和分离位置,并用相应的符号标志出来,见图1、2。
机械联锁装置上的操作手柄和主断路器的操作手柄,能同时被三把挂锁锁住。
3.3 可移式电动机控制中心和小电流动力配电中心(以下简称可移式MCC)
3.3.1 可移式MCC的柜体结构特征同3.2.1条和3.2.2条。
3.3.2功能单元设计成可移式结构,功能单元与垂直母线的边接,采用一次隔离触头,即使与其连接的电路是带电的,也可以从设备中完整地取出和放回该功能单元。另一端固定式结构。
3.3.3 可移式MCC的功能单元分为3E,6E,8E,16E,24E,32E和40E。功能单元隔室总高度也是72E。(见图4)
图1:8E/4和8E/2抽屉操作手柄位置图

图2:8E、16E、24E抽屉操作手柄位置图

3.4 母线系统
3.4.1 水平母线(L1、L2、L3)
水平母线安装于柜后独立的母线隔室中,它有二个可选择的安装位置,即柜高的三分之一或三分之二处,母线可按需要装于上部或下部,也可以上下二组同时安装,二组母线可以单独使用,也可以并联使用。
每相母线由2根或4根或8根母线并联,母排截面有10×30×2;10×60×2;10×80×2;10×60×4;10×80×2×2和10×60×2(mm)六种。
3.4.2 垂直母线
垂直母线为50×30×5的角尺型铜母线,它被嵌装于用阻燃型塑料制造的功能壁中,带电部分的防护达1P20。
3.4.3 中心母线(N线)和中性保护母线(PE线或PEN线)
中性母线和中性保护母线平行地安装在功能单元隔室的下部和垂直安装在电缆室中,N线与PE线之间如用绝缘子相隔,则N线与PE分别使用,二者之间如用导体短接,即成PEN线。
3.5 保护接地系统
装置的保护电路由单独装设的并贯穿于整个排列长度的PE线(或PEN线)和可导电的结构件二部分组成。装置中金属结构件,除外表的门和封板外,其余都经过镀锌处理,在结构件的连接处,都经过精心设计,使其能通过一定的短路电流。
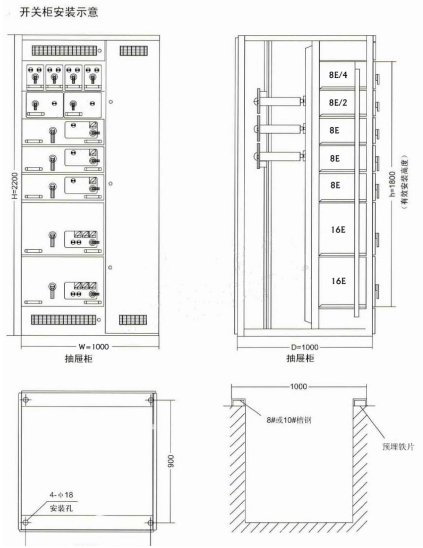
图3:开关柜的外形尺寸

4.技术参数 |
5.安装、使用、维修
5.1 开关柜的外形尺寸见图3,安装参考图见图4。
5.2产品即可吊装亦可铲车运输。
5.3当装置运抵目的地后,首先应检查包装箱是否完工整,若装置不立即安装,应存放在干燥清洁之处。
5.4 装置推荐为离墙安装式,安装基本平面要求平整,基础槽钢的水平误差为1/1000,总长偏差±3mm。
5.5 装置就位后,首先应检查每台装置与底面是否垂直,否则允许用垫块校正然后将整个排列的底框用连接板连接起来,安装好排列螺钉,再与基础槽钢进行焊接,见图11。
5.6 产品在安装和检修后进行下列检查方能投入运行。
5.6.1检查电器元件有无损坏,动作是否灵活。
5.6.2检查紧固件是否旋紧(含电器元件上不接线部位)。
5.6.3耐压试验或绝缘电阻测试合格。
5.6.4产品在使用中应定期保洁,对堵塞通风气道的灰尘及杂物须经常清理。
图4:安装示意图

下一篇:GCK型低压抽出式开关柜